Hřebenový zvedák 15-00 5t
Dostupnost: skladem
Kód: KAT4701
varianta standardního heveru, nosnost 5 t
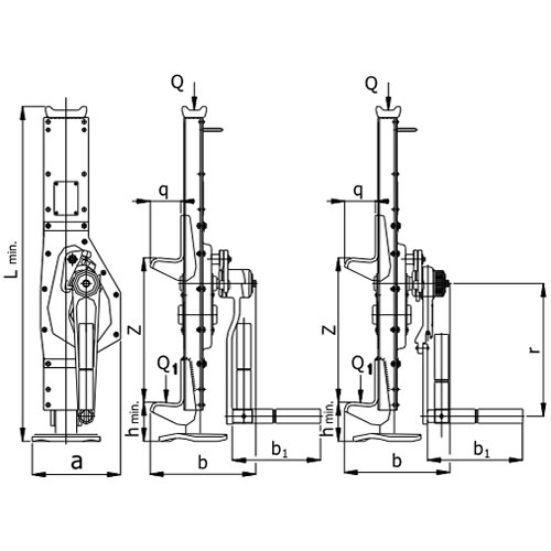
Popis Hřebenový zvedák 15-00 5t
Použití:
- pro zvedání a manipulaci s břemeny nejrůznějších druhů
- pro montážní práce všeho druhu, zejména ve stavebnictví
- možná varianta pro prostředí s nebezpečím výbuchu (označení NEXP)
Vlastnosti:
- robustní a odolná konstrukce
- zvedání (rozpínání) hlavicí nebo boční opěrou
- spolehlivě udrží břemeno v libovolné poloze brzdou zabudovanou v ruční klice
- přijatelná ovládací síla na ruční klice
- nízké nároky na údržbu
- kryt převodového ústrojí (u nosnosti 2,5 t - 10 t) opatřen mazací zátkou umožňující promazání převodů bez nutnosti demontáže krytu
- patka zvedáku opatřena pomocným otvorem – snadnější použití zvedáku k rozpírání ve vodorovné poloze ve výšce nad hlavou.
Otvor v patce umožňuje snadnou fixaci konce zvedáku pomocí např.šroubu nebo hřebíku bez nutnosti použít při práci pomocníka.
- splňuje požadavky ČSN EN 1494
Pro zvýšený komfort obsluhy lze objednat v provedení s račnoklikou (RK) nebo račnoklikopákou ( RKP) - cena na dotaz
- Kategorie: Hřebenové zvedáky
Vybírejte z podobných produktů
Velkoobchodní spolupráce
Garance kvality
Kamenná prodejna
Sortiment skladem
MONTECO s.r.o.
Mladoboleslavská 676, (mapa)
Praha 9 190 17,
Česká republika
O nakupování & účet
Mohlo by vás zajímat







